PM09

Acetal Vinkelkobling 90°

  • Vinkelkobling 90° drejelig
  • Rør/slange - udvendigt gevind
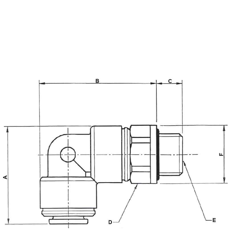
Vis alle mål +
Artikel nummer VVS-nummer dxRABCDEFFiler
PM090411E 4×1/8"24305.5142.515
PM090412E 4×1/4"24318172.518
PM090511E 5×1/8"24305.5143.515
PM090512E 5×1/4"24318173.518
PM090611E 6×1/8"27345.515416
PM090612E 6×1/4"2735817418
PM090811E 8×1/8"30365.517418
PM090812E 8×1/4"30378175.518
PM090813E 8×3/8"30379.5225.524
PM091012E 10×1/4"3542820722
PM091013E 10×3/8"35429.522724
PM091014E 10×1/2"354212.527730
PM091213E 12×3/8"44509.5248.526
PM091214E 12×1/2"445012.5278.530
Datablad