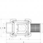
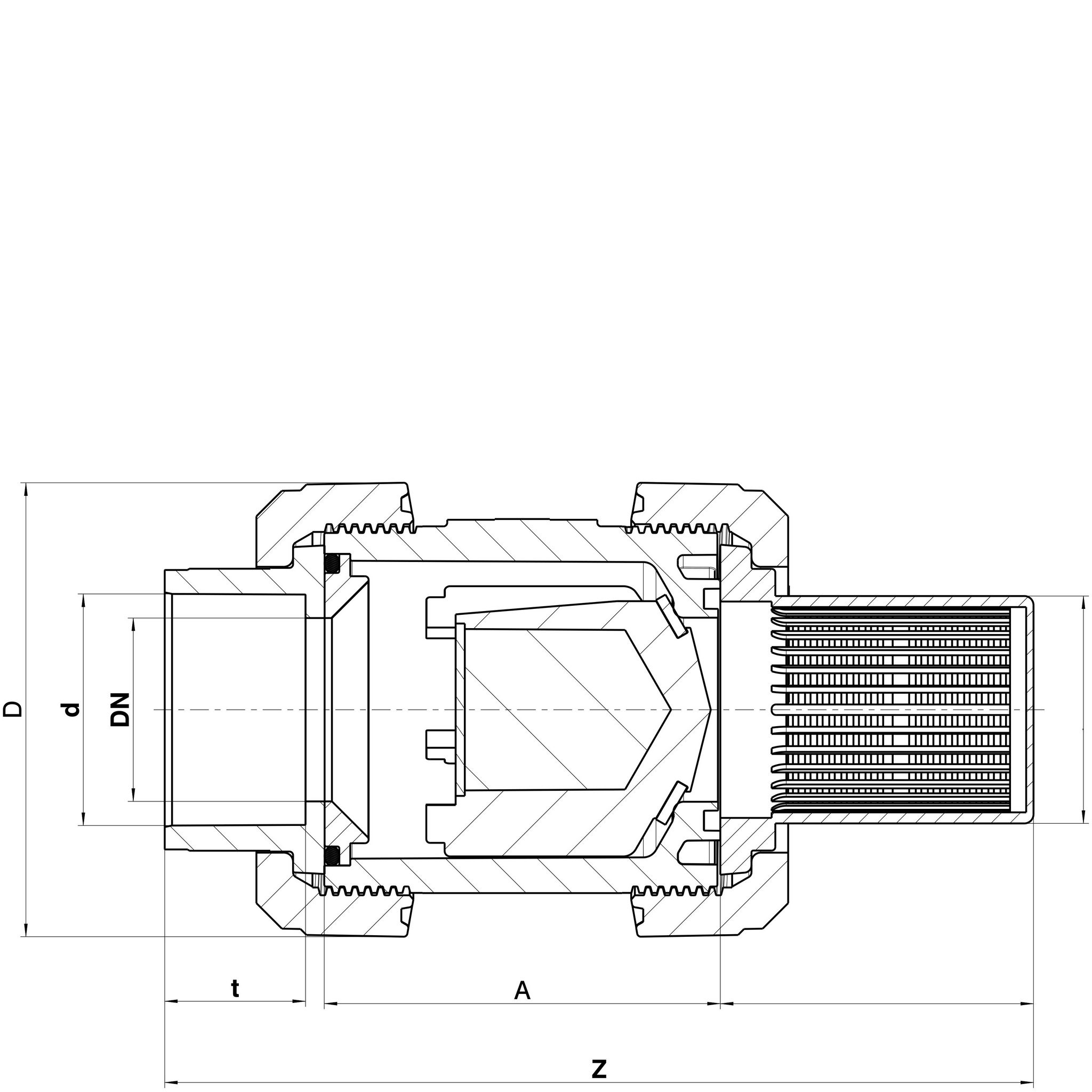
FVIM-V

PP bundventil FPM

  • PP FV fjederbelastet bundventil med bundsi
  • Union med indv. muffevsejsning
  • FPM
  • PN10 d16/3/8"-75/2 ½"
  • PN6 d90/3"-d110/4"
  • OBS: Fjeder i AISI3104
Vis alle mål +
Artikel nummer VVS-nummer dDNDAZtFiler
FVIM-V-016 1610536267,5–7114,5–16,5 CAD/Step
FVIM-V-020 2015536267,5–7114,5–16,5 CAD/Step
FVIM-V-025 2520637076–7917–19,5 CAD/Step
FVIM-V-032 3225707481–8419,5–22,5 CAD/Step
FVIM-V-040 4032858490–9622–26,5 CAD/Step
FVIM-V-050 504010195104–11425–31,5 CAD/Step
FVIM-V-063 6350121.5109121–13429–38,5 CAD/Step
FVIM-V-075 7565155137148–16234,5–45 CAD/Step
FVIM-V-090 9080188163183–21138,5–55,5 CAD/Step
FVIM-V-110 11080188163176–20744–64 CAD/Step
Datablad