M1IM

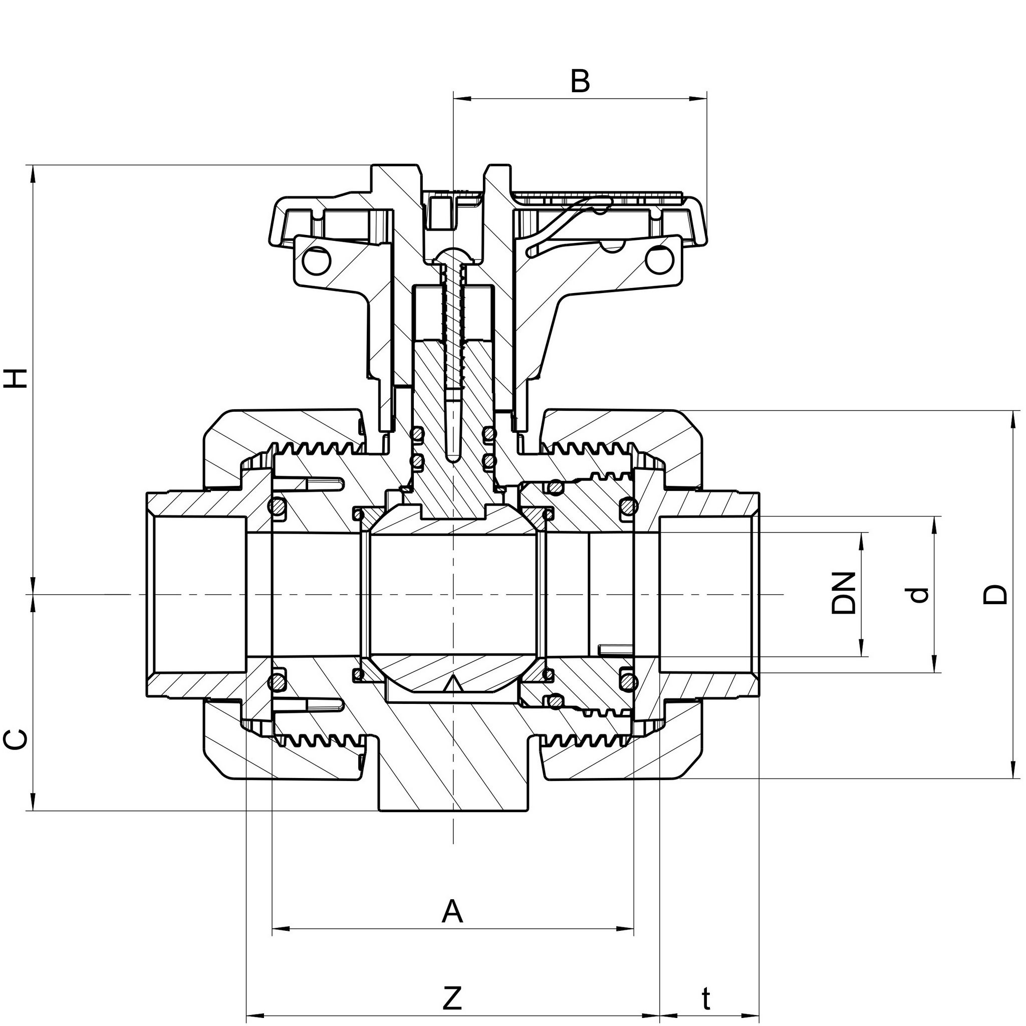
PP Kugleventil indv. svejsning

  • PP M1 Kugleventil 2-vejs
  • Med PP indlægsdele for indv. muffesvejsning
  • Udstyret med sikkerhedshåndtag, samt mulighed for montering af identifikationsskilt.
  • Faste sæder, en side kan demonteres under fuldt tryk.
  • Sædetætning i PTFE
  • PN10
  • E=EPDM
  • V=FPM
Vis alle mål +
Artikel nummer VVS-nummer dDNDAZtCHBFiler
M1IM-E-016 16105861.569.514.53371.539.5 CAD/Step
M1IM-E-020 20155861.566.5163371.539.5 CAD/Step
M1IM-E-025 252068.5697817.5407851 CAD/Step
M1IM-E-032 322575.5738419.543.58061 CAD/Step
M1IM-E-040 4032928397225198.563.5 CAD/Step
M1IM-E-050 50401089411425.556.5106.572 CAD/Step
M1IM-E-063 6350127.5109136.52964.5113.584 CAD/Step
M1IM-E-075 7565160131.516234.585143110 CAD/Step
M1IM-E-090 9080196.5156.5206.538.5100161132 CAD/Step
M1IM-E-110 11080196.5156.5207.542100161132 CAD/Step
Datablad

Tilbehør

Q/M1IM

PP Bøsning

SE/M1

Spindelforlænger

FB/M1

Elektrisk tilbagemelder O/C til kugleventil M1

DP/M1

Distanceplade til panelmontage

E/M1IM

PP Omløber

SET/M1

Montagesæt til ventil M1